• HOME
  • SITEMAP
  • CONTACT US

진데크

  • 회사소개
  • DECK PLATE
  • 공사실적
  • 자료실
  • CEO 인사말
  • 회사연혁
  • 찾아오시는길
  • 건축사업부
  • 교량사업부
  • 건축사업부
  • 교량사업부
  • 진데크 소식
  • 자료실

DECK PLATEDECK PLATE

  • 건축사업부
    • DECK PALTE
      • 철선(철근)일체형 DECK
      • FORM DECK
      • 내화구조용 DECK
    • 부속자재
    • 시공순서
      • S조
      • RC조
  • 교량사업부
    • NON ENDCLOSURE
      DECK PLATE
    • HUNCH PLATE AND
      BENT PLATE
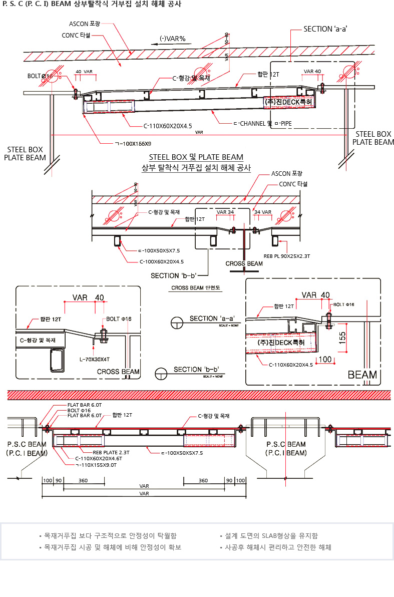
    • 상부탈착식
    • 교량상부 CANTILEVER
    • 시공순서
      • 교량 데크 설치 순서
      • 교량 탈착식 설치 순서
      • 교량 CANTILEVER
        설치 순서

상부탈착식

  • Home
  • DECK PALTE
  • 교량사업부
  • 상부탈착식

주소 : 서울시 강동구 양재대로 1319 대성빌딩 3층 | 사업자등록번호 : 211-81-84439 | 대표이사 : 전대수 | 전화 : 02-518-4568 | 팩스 : 02-518-4569
COPYRIGHT 2015 (주) 진데크 CO.LTD. ALL RIGHTS RESERVED. DESIGNED BY OKTOMATO.